Столовая
Количество этажей - 2
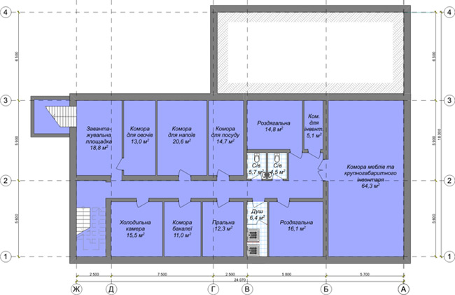
Общая площадь подземного этажа - 262,0 м² |
Общая площадь 2 этажа - 347,4 м² |
Общая площадь 1 этажа - 347,4 м² |
Общая площадь дома - 956,8 м² |
Количество этажей - 2
Общая площадь подземного этажа - 262,0 м² |
Общая площадь 2 этажа - 347,4 м² |
Общая площадь 1 этажа - 347,4 м² |
Общая площадь дома - 956,8 м² |